Звоните!
+7 ( 495 ) 4251561
Обзвонщикам, ищущим «взаимовыгодное сотрудничество» - не звонить, не спамить!
Фотографии работ
Наши услуги
- Дизайн-проект
- Пример дизайн-проекта
- Ремонт под ключ
- Ремонт квартир в новостройке
- Косметический ремонт
- Капитальный ремонт
- Евроремонт квартир
- Ремонт и отделка коттеджей
- Ремонт премиум класса
- Строительство коттеджей
- Ремонт офисов
- Ремонт производст. помещений
- Ремонт складов
- Ремонт магазинов
- Ремонт кафе
- Порядок ремонтных работ
- Сроки ремонта квартир, коттеджей
- Снабжение материалами
Стоимость ремонта
| от |
4571
|
руб / м2 |
| от |
7519
|
руб / м2 |
| от |
8591
|
руб / м2 |
| от |
7179
|
руб / м2 |
Виды ремонта
Пример дизайн-проекта
Дизайн-проект - это не «красивые картинки», надерганные с туманными целями в интернете. Это совокупность чертежей, различных спецификаций и реалистичных 3D-проекций.
Вся перечисленная техническая документация пригодится не только для подрядчика, который станет реализовывать проект на практике. Она нужна в первую очередь самому Заказчику, чтобы он еще до начала работ четко понимал, что именно должно получиться в результате.
Подробнее об этапах разработки дизайн-проекта и последовательности выполнения заказа Вы прочитаете на этой странице.
Также, если при ремонтных работах потребуется (к примеру) перепланировка помещения или модернизация электропроводки, то дизайн-проект понадобится для согласования этих вопросов в госорганах.
Бланк Технического Задания на разработку дизайн-проекта (docx, 47Кб)
Другими словами, дизайн-проект представляет собой полный комплект технической документации, который позволяет не только «увидеть» ваш будущий интерьер, но и с высокой степенью достоверности определить (и максимально оптимизировать) предстоящие затраты на его реализацию, уберечься от критических ошибок.
Дизайн-проект (как приложение к договору на выполнение ремонтных работ) является точным и обязательным руководством к действию для подрядчика, выполняющего ремонт.
Т.е. четко определяется непосредственно предмет договора и Заказчик избавлен от различных неожиданностей, необходимости давать указания и отвечать на вопросы строителей (которые неизбежно возникают в ходе работ).
Нужно отметить, что состав дизайн-проекта может меняться в зависимости от конкретного случая. К примеру, если Вам не требуется перенос радиаторов, то и в дизайн-проекте не будет соответствующего чертежа. И наоборот, если по проекту предусматривается установка системы контроля протечек воды, а в договоре этого чертежа нет, он все-таки будет включен в дизайн-проект.
В итоге, состав дизайн-проекта зависит от специфики помещения и, безусловно, желания Заказчика.
Современные стили интерьера (pdf, 35Мб)
Каждый дизайн-проект интерьера разрабатывается в БригадаПро-мск индивидуально, потому что в зависимости от назначения объекта, пожеланий Заказчика и особенностей помещения набор документации дизайн-проекта может меняться.
Наиболее популярный, полный дизайн-проект по цене от #1450 руб. м2, - для тех, кто эффективно использует свое время и деньги, доверяет профессионалам, выбирает качество и кому действительно важен конечный результат собственных замыслов.
С помощью дизайн-проекта Вы легко осуществите контроль за рабочими и закроете максимум вопросов по дизайну и ремонту.
Финальный этап разработки дизайн-проекта - это создание трехмерной реалистичной визуализации всех помещений. Благодаря 3D-визуализации Вы можете увидеть ваш будущий интерьер таким, каким он должен получиться после завершения всех отделочных работ.
Это даст уникальное преимущество и позволит заранее предусмотреть многочисленные нюансы, которые бы могли возникнуть либо в процессе ремонта либо по его окончании (когда, увы, вносить какие-то корректировки в отделку будет проблематично и затратно).
Взгляните на пример разработанного нами дизайн-проекта для того, чтобы получить представление и понять за что, в конечном итоге, платите.


План обмера помещений
Обмерный план – это отправная точка для всего дизайн-проекта. На этом чертеже изображается в масштабе план помещения с точными размерами всех комнат, высотой потолков, расстояниями между элементами (оконными проемами, дверными проемами, нишами и пр.). Это важный документ, на основании которого будут прорабатываться все остальные планы, рассчитываться объемы материалов, проектироваться освещение, подбираться мебель и т.д.
План демонтажа старых перегородок
Этот план разрабатывается для типовых квартир в панельных, блочных и кирпичных многоэтажках. На нем детально прорабатываются размеры и конфигурация всех комнат с нанесением перегородок, которые будут демонтированы вследствие ремонтных работ. При разработке этого плана важно учитывать требования к перепланировкам помещений. 
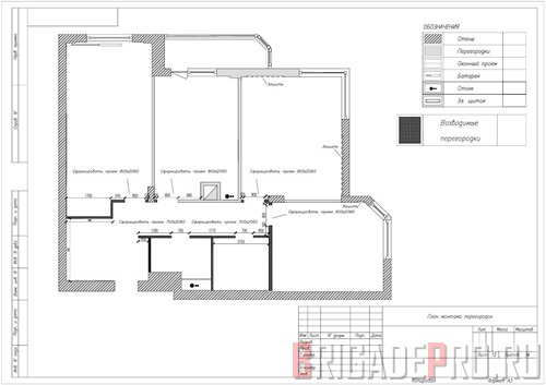
План возведения новых перегородок
На план наносятся перегородки, которые будут отстроены во время ремонтно-строительных работ. Этот план особенно важен для помещений со свободной планировкой. Необходимо соблюсти все требования перепланировки и произвести тщательные расчеты, чтобы нагрузка на перекрытия не превысила максимально допустимую.
План шумоизоляции
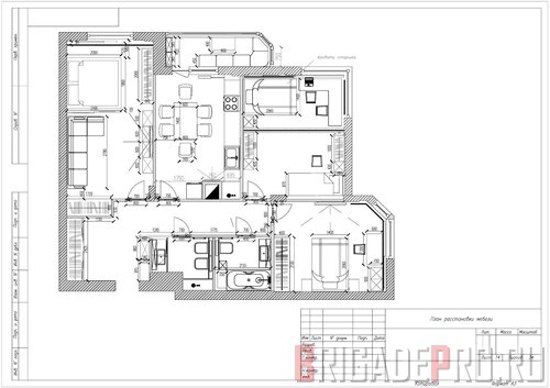
План после перепланировки c расстановкой мебели
Очень важный чертеж в дизайн-проекте, на который наносятся элементы мебели. От расстановки мебели будет зависеть размещение розеток и светильников, а так же расположение прочего оборудования (например, кондиционеров, бытовой техники на кухне,сантехники в туалетной и ванной комнатах и пр.). 
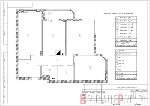
План спецификации помещений
План теплых полов
На этом чертеже указывается точное расположение, площадь и конфигурация пола с подогревом, а так же наносится расположение регуляторов. 
План напольных покрытий
План потолков
План расстановки светильников
На этом чертеже показывается размещение осветительных приборов с точным указанием типов светильников (встроенные потолочные светильники, люстры, специфические светильники для ванной комнаты и пр.). Кроме этого на план наносятся все выключатели с указанием типа и электровыводы 220v. 
План взаимодействия выключателей
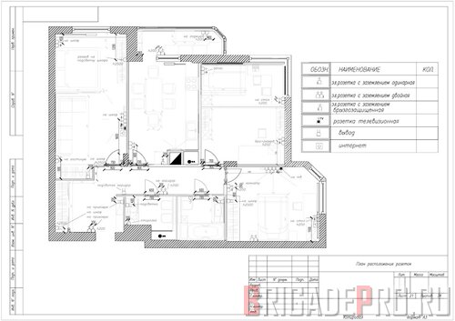
План расположения розеток
Развертка корридор
Развертка гостинная
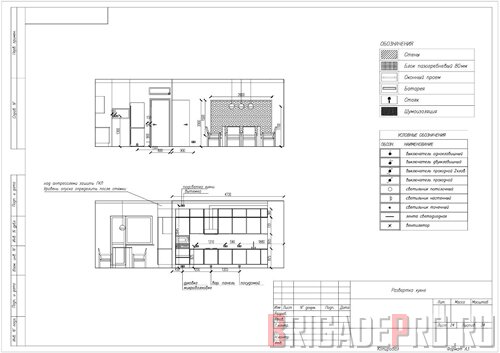
Развертка кухня
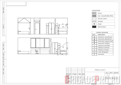
Развертка детская 1 
Развертка детская2
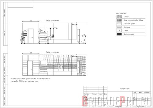
Развертка СУ1
Развертка СУ2
Ведомость отделочных материалов
Ведомость отделочных материалов 2
Ведомость ответительных приборов
Ведомость мебели 1
Ведомость мебели 2
Ведомость мебели 3
Визуализация. Прихожая
Визуализация. Гостинная

Визуализация. Кухня
Визуализация. Спальня 1
Визуализация. Спальня 2
Визуализация. СУ 1
Визуализация. СУ 2
Визуализация. Лоджия
А теперь узнайте, как мы получаем такой результат на этой странице!

+74954251561